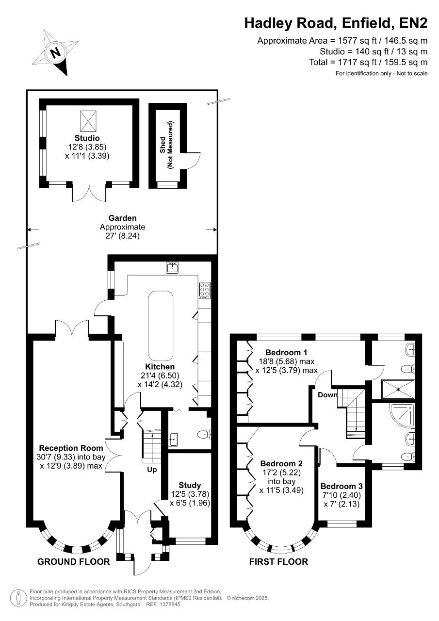
Set on the sought-after Hadley Road in Enfield, EN2, this well-presented three-bedroom semi-detached home offers generous living space, a versatile layout and a modern finish throughout. The property has been extended to create an excellent balance of reception, work and family areas, complemented by a sizeable driveway providing ample off-street parking.
The ground floor includes a spacious front reception room with a bay window, a large open-plan kitchen with an island and dining area leading directly to the garden, a separate study ideal for home working and a convenient ground floor WC. The rear garden is arranged for low maintenance and features a detached studio currently used as a home gym and storage space, along with a separate shed.
The first floor provides three well-proportioned bedrooms and a family bathroom.
Hadley Road is a desirable residential location positioned within easy reach of Enfield Town, which offers a variety of shops, restaurants, cafés and essential amenities. Transport links are strong, with Gordon Hill and Enfield Chase stations nearby, providing direct routes into central London. The area is well served by reputable schools and numerous green spaces, including Hilly Fields Park and Trent Park, making it particularly attractive for families.
This property combines convenience, comfort and flexibility, making it an excellent opportunity for those seeking a well-located home in a popular part of Enfield.
For further information on this property please call 02088844844 or e-mail [email protected]
